Architectural Services
Stage 1: Schematic Design
We deliver hand-drawn or CAD simple initial floor plans and elevations, consisting of two design ideas. This quick and affordable approach, known as a sketch scheme, allows you to explore your project’s possibilities while keeping your brief, budget, and planning rules in mind.
For existing buildings, we often begin with estate agent plans. Before moving to the next stage, a measured survey is required. Most surveys can be conducted ourselves, but for specialist buildings or land surveys, we’ll obtain quotes and coordinate a surveyor for you.
Throughout the process, we guide you step-by-step, ensuring your confidence and information at every stage to continue your journey.
What’s included:
Site visit and briefing call
Initial design options (2/3)
Initial Project costings
One Design review meeting and support
Advice and guidance
Inspirational images for each option
Property and planning constraint research
Our comprehensive services are delivered through four distinct stages, designed to offer you the flexibility to select the level of support best suited to your project's unique requirements. Each stage is clearly defined with a detailed list of deliverables, accompanied by a transparent, fixed pricing structure outlined below unlike other design professionals that will quote on percentage of build costs. This approach ensures clarity and confidence in the value and quality of the services you are receiving.
Throughout the entire process, we provide expert guidance and support at every step, empowering you with the knowledge and assurance needed to make informed decisions and successfully advance your project. Our commitment is to deliver exceptional value, reliability, and peace of mind, reinforcing your trust in our professional services.








* Typical Build costs are a scale that allow for different complexity of build, specification and levels of Finnishes.


Design Services and fees are outlined in this section but if you'd prefer a digital download version click the button below.
Stage 2: Proposal Development
Once you’ve chosen a design, we add more detail, refining the scale, mass, and materials through plans, sections, elevations, and 3D views. We’ll also submit any necessary Pre-Planning Applications to check if the design complies with local planning rules.
This is an excellent opportunity to consider other consultants your project may require, such as ecologists, surveyors, or planning specialists. We can assist you in appointing and coordinating them, ensuring everything remains on track.
What’s included
Existing drawing package
OS (Location) plan, block Plan, floor plans, sections & Elevations
Proposed drawing package for one option:
block & roof plan, floor plans, Elevations & sections
Weblink to interact with the 3D model.
One design review meeting and email/phone support are provided.
Various consultants will be coordinated as required.




Stage 3: Design Proposal and Submission
At this stage, we refine your design and prepare the drawings needed for planning permission—or a Lawful Development Certificate if your project qualifies.
We handle all communication with the local authority, provide extra information or drawings if required, and attend meetings.
Planning usually takes at least 8 weeks, and any conditions that follow may need additional work, which we’ll quote separately. For complex projects, we can coordinate a planning consultant to ensure everything meets local policies.
What’s included:
Design Collation and Refinement for Planning/LDC Submission
Final Design Amendments and Updates: If necessary, refine the design to meet the client’s requirements.
Design Review Meeting: Schedule a one-on-one meeting with the client to discuss the design and gather feedback.
Email/Phone Support: Provide ongoing communication and support via email and phone to facilitate the design process and address any inquiries.
Design & Access Document: Create a comprehensive document outlining the design concept, specifications, and accessibility features.
Planning Application/LDC Form: Complete and submit the necessary planning application and LDC form to the relevant authorities.
Support Throughout the Application Process: Offer comprehensive support throughout the application process, including additional drawings or information if requested by the local authority








Planning submission
Pre-Application vs. Full Planning Application
Pre-Application (Pre-App) Optional
*Depending on the scope of your project a pre-app can potentially be an option to pursue although it is an optional process, it can I identify the potential for projects such as listed building, barn conversion, housing development, or new dwelling in a consideration area or AONB (Area of Outstanding Natural Beauty).
Purpose: Early engagement with the planning authority to test ideas and identify risks.
What’s Submitted: Outline proposals, concept drawings, site plan, supporting details.
Process: Discussion with planning officers, consultation with specialists, written advice provided.
Outcome: Non-binding feedback highlighting opportunities, risks, and likely support.
Value to Clients: Saves time and money by spotting issues early. Improves proposals before full costs are incurred.
Pre-App Fee for householder £325 (through Planning portal)
Full Planning Application
Purpose: Formal submission for planning consent.
What’s Submitted: Detailed drawings, technical reports, planning statements, forms, and fees.
Process: Application validated, public consultation, statutory consultee input, officer assessment.
Outcome: Binding decision: approval, conditional approval, or refusal.
Value to Clients: Secures consent needed to progress development, protect investment, and unlock site value.
Planning fee for householder application £613 (through Planning portal)
Together: The pre-app process reduces risk and strengthens your case although optional, while the planning application delivers the formal approval you need to move forward with your Project.
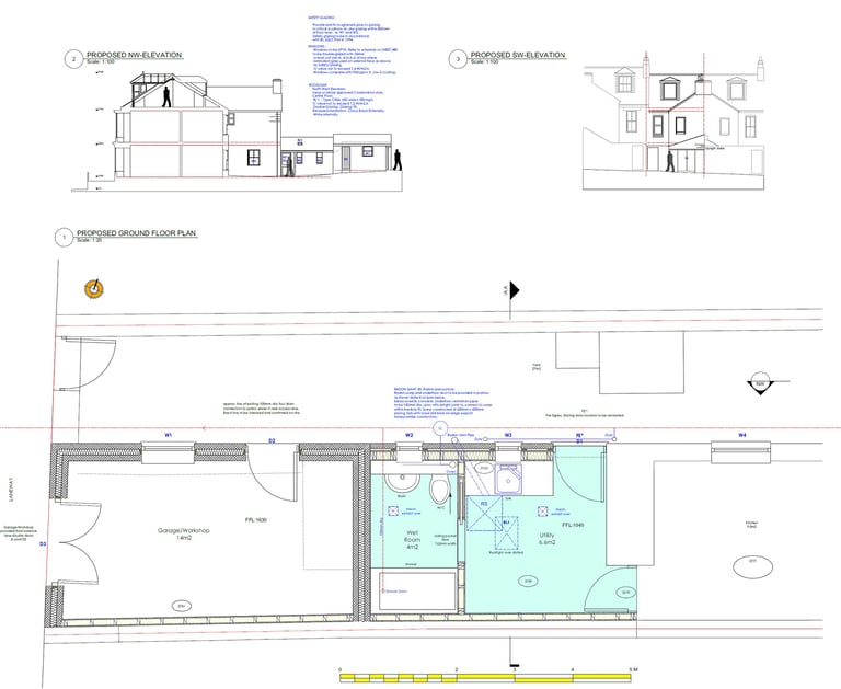
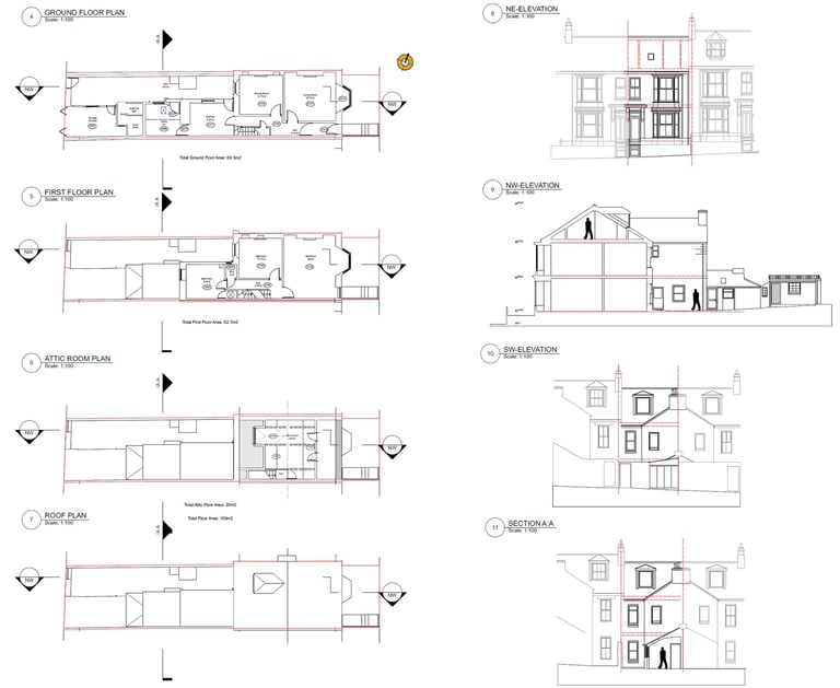
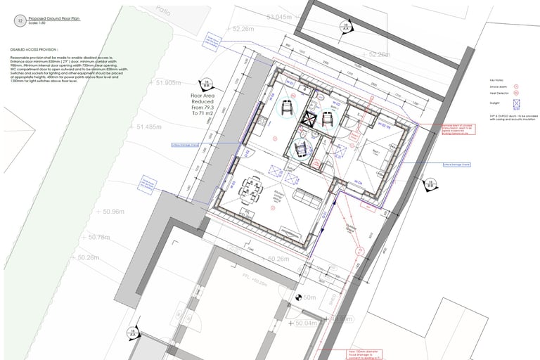
Stage 4: Technical Design
after planning approval, the focus is on how your project will be built and ensure it meets UK Building Regulations. We submit technical drawings to Building Control covering fire safety, access, drainage, and thermal performance. Builders may work from these drawings, or we can create more detailed construction drawings if you want multiple quotes. At this stage, a structural engineer is required to design foundations, beams, and other structural elements. Depending on your project, specialist M&E engineers and a SAP assessor may also be needed to complete the technical information.
What’s included:
Technical drawing package to include:
Site plan demonstrating surface and foul water disposal systems.
Proposed floor plans illustrating wall construction, escape routes, surface and foul water disposal, access requirements, and structural information.
Proposed elevations indicating datum levels.
Cross section A-A & Long section B:B showcasing construction methodology, thermal performance, and structural design.
Coordination with the structural engineer and other consultants.
Building Control specification document.
Any additional drawings as requested by Building Control.




Model Making
Physical models aid in the design process allowing the client/s to visualise the proposal three dimensionally & understand the massing, spaces and how a proposal will sit within the context.
LiDAR Surveying
Sites can be scanned through lidar using point cloud that will allow the building & landscape to be accurately surveyed then used for producing existing drawing package and then later in producing a 3D model with the proposed design.
Highly detailed 3D models and visualizations that bring your ideas to life beautifully.
3D rendering can be provided to allow design decisions to be made allowing material choices and finer details before construction.
3D Modelling / BIM




