At Pennserneth Studio, we provide architectural services designed to turn your ideas into carefully crafted spaces. Whether you’re planning a home extension, a new-build project, or a commercial development, we offer expert support every step of the way.
Our services cover everything from initial concept design to planning applications and building regulations. We work closely with clients to create thoughtful, functional designs while ensuring compliance with all relevant planning and regulatory requirements.
With a strong understanding of local planning policies, we help streamline the approval process and bring clarity to what can often feel like a complex journey.


Pennserneth Studio, providing Architectural Design Services & Planning in Cornwall


Click Download Button Below for your Free Design Services Guide including Instant Quote with Fixed Fees.
Customer reviews
Discover what our clients think about our service
It was a first class bit of planning.
We had an old single storey single skin extension at the back of our Victorian terraced property. It housed a kitchen and bathroom, but was shabby, damp, cold and cramped; we wanted it replaced. Connor’s design boldly reimagines the space, creating a sleekly contemporary extension to contain anew extended kitchen and a wet room. A particular feature was the two bay windows, which added width and light, whilst providing a visual echo of the bays on the front of the house. Connor’s design managed to be both innovative and respectful of the site, and has resulted in a significant improvement to our house and the way we use it.
★★★★★


Any scale of project undertaken from householder extensions to new builds, your vision turned into reality.
Click below for a guide through the stages of work.


Guidance on building regulations to streamline your project and ensure that your build meets current regulations


Physical models and maquettes allow the client to understand the design and relationship between spaces and materials


Precision lidar surveying for accurate data and that creates a 3D model of your existing structure then allows informed decision-making.


Portfolio
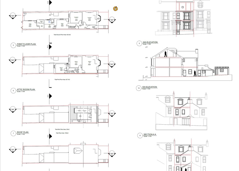
Alma Terrace
Single storey extension to replace kitchen and downstairs bathroom to a victorian terrace property in a conservation area of penzance.


Carnequidden
single storey disabled access annex to allow agile aging relative to be with the family with care.




Cliff Road
Proposed additional storey to a bungalow creating 3 beds and open plan living, kitchen and dining overlooking mounts bay.
Alma Terrace
Single storey extension to create utility and downstairs bathroom to a victorian terrace property in penzance.


